Search

Leave a Message

Thank you for your message. We will be in touch with you shortly.

Explore Our Properties

Property Description

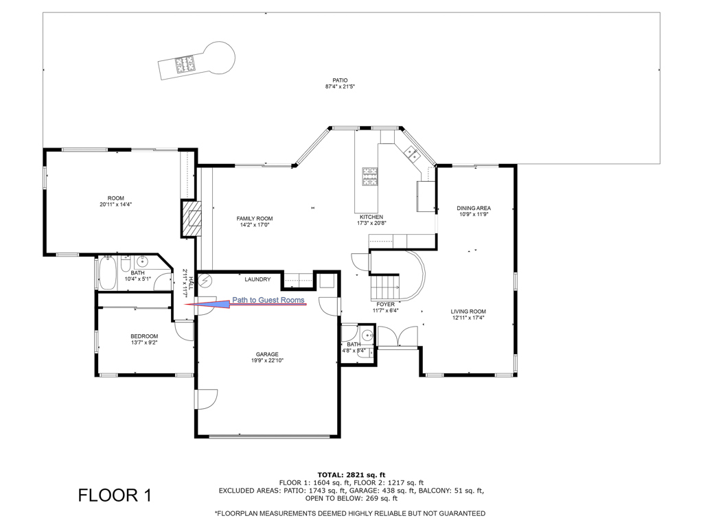
THIS HOME IS A BEAUTIFUL MAIN HOUSE, PLUS A SEPARATE 595 SQ. FT. GUEST QUARTERS! The main house has 3 bedrooms, 2.5 bathrooms, plus a loft with a balcony that overlooks the backyard. The GUEST QUARTERS is 1 bedroom, 1 full bath and a large living space. The kitchen is open to the family room with beautiful cheery wood cabinets, granite counters, and stainless appliances. The backyard has so much usable space with a large concrete patio, a built in gas BBQ with a side burner, a lovely gazebo, fire pit, fountain, several fruit trees and roses. This house sits at the end of a cul de sac, in a quiet neighborhood and has crown moldings, rain gutters, a laundry chute, new interior paint (including the garage), new carpet installed in both the main house and the guest quarters and recessed lighting throughout. Award winning schools and close to shopping and freeways.

Overview

Property Status
Sold
Lot Size
10,000 Sq.Ft.
MLS ID
PW24203853
Property Type
Residential
Year Built
1976

Features & Amenities

Architecture Styles
Traditional
View Description
None
Stories
2
Garage Spaces
2.0
Water Source
Public
Utilites
Electricity Connected, Sewer Connected, Water Connected
Pool
None
Lot Features
Back Yard, Cul-De-Sac, Front Yard, Sprinklers In Rear, Sprinklers In Front, Lawn, Landscaped, Level, Sprinklers Timer
Parking
Concrete, Direct Access, Driveway Level, Door-Single, Driveway, Garage Faces Front, Garage
Heat Type
Central
Air Conditioning
Central Air
Laundry Room
Laundry Chute, Electric Dryer Hookup, Gas Dryer Hookup, In Garage
Fireplace
Family Room
Appliances
6 Burner Stove, Dishwasher, Gas Cooktop, Disposal, Gas Range, Gas Water Heater, Microwave, Refrigerator, Water To Refrigerator, Warming Drawer
Other Interior Features
Wet Bar, Breakfast Bar, Built-in Features, Balcony, Breakfast Area, Ceiling Fan(s), Crown Molding, Cathedral Ceiling(s), Separate/Formal Dining Room, Granite Counters, In-Law Floorplan, Open Floorplan, Recessed Lighting, Bedroom on Main Level, Loft, Walk-In Closet(s)
Sewer
Public Sewer
Disability Features
None
HOA Amenities
Call for Rules, Maintenance Grounds
Security Features
Carbon Monoxide Detector(s)
Other Exterior Features
Barbecue, Rain Gutters
Elementary School
Anaheim Hills
Middle School
El Rancho
High School
Canyon
School District
Orange Unified
Sales Price
$1,560,000
HOA
$165/mo

Downloads

6798 E Leafwood Drive

Schedule a Tour

We would love to help you see this beautiful home! As a full-service brokerage, we can help you tour. Please submit an offer, and answer questions about the buying process.

Thank you

for your interest in 6798 E Leafwood Drive, Anaheim Hills, CA 92807

6798 E Leafwood Drive
Navigate

I'm Interested In

6798 E Leafwood Drive

or
  • CallMolly Mullen

    License #02189895

    (949) 394-1980
  • Browse Our

    Portfolio

    • 18942 El Moro Way Sold

      $4,250,000

      18942 El Moro Way, Villa Park, CA 92861

      • 5 Beds
      • 7 Baths
      • 5,622 Sq.Ft.
    • 19225 Palm Vista Sold

      $2,450,000

      19225 Palm Vista, Yorba Linda, CA 92886

      • 5 Beds
      • 5 Baths
      • 4,053 Sq.Ft.
    • 116 B Surfside Avenue Sold

      $2,250,000

      116 B Surfside Avenue, Surfside, CA 90743

      • 2 Beds
      • 3 Baths
      • 1,823 Sq.Ft.
    • 1800 W Cooper Court Sold

      $1,852,000

      1800 W Cooper Court, La Habra, CA 90631

      • 4 Beds
      • 3 Baths
      • 2,910 Sq.Ft.
    • 7573 E Endemont Court Sold

      $1,785,000

      7573 E Endemont Court, Anaheim Hills, CA 92808

      • 5 Beds
      • 5 Baths
      • 4,032 Sq.Ft.
    • 5695 Vista Del Mar Sold

      $1,680,000

      5695 Vista Del Mar, Yorba Linda, CA 92887

      • 3 Beds
      • 3 Baths
      • 2,540 Sq.Ft.
    • 337 Teton Circle Sold

      $1,650,000

      337 Teton Circle, Placentia, CA 92870

      • 4 Beds
      • 3 Baths
      • 2,577 Sq.Ft.
    • 6798 E Leafwood Drive Sold

      $1,560,000

      6798 E Leafwood Drive, Anaheim Hills, CA 92807

      • 4 Beds
      • 4 Baths
      • 3,065 Sq.Ft.
    • 13181 Dean Sold

      $1,400,000

      13181 Dean, Tustin, CA 92780

      • 3 Beds
      • 2 Baths
      • 1,353 Sq.Ft.
    • 16044 Promontory Road Sold

      $1,380,000

      16044 Promontory Road, Chino Hills, CA 91709

      • 4 Beds
      • 3 Baths
      • 2,530 Sq.Ft.
    • 20616 Smoketree Avenue Sold

      $1,370,000

      20616 Smoketree Avenue, Yorba Linda, CA 92886

      • 4 Beds
      • 2 Baths
      • 2,157 Sq.Ft.
    • 1782 Green Meadow Pending

      $1,339,000

      1782 Green Meadow, Tustin, CA 92780

      • 4 Beds
      • 2 Baths
      • 1,648 Sq.Ft.
    • 332 Fairway Lane Sold

      $1,263,500

      332 Fairway Lane, Placentia, CA 92870

      • 4 Beds
      • 2 Baths
      • 1,764 Sq.Ft.
    • 18948 Kentucky Downs Lane Sold

      $1,200,000

      18948 Kentucky Downs Lane, Yorba Linda, CA 92886

      • 3 Beds
      • 3 Baths
      • 2,615 Sq.Ft.
    • 2041 Brookhaven Avenue Sold

      $1,200,000

      2041 Brookhaven Avenue, Placentia, CA 92870

      • 3 Beds
      • 2 Baths
      • 2,130 Sq.Ft.
    • 301 Lassen Circle Sold

      $1,200,000

      301 Lassen Circle, Placentia, CA 92870

      • 3 Beds
      • 2 Baths
      • 1,684 Sq.Ft.
    • 2441 Park Avenue Sold

      $1,197,000

      2441 Park Avenue, Long Beach, CA 90815

      • 3 Beds
      • 2 Baths
      • 1,363 Sq.Ft.
    • 5402 Jefferson Street Sold

      $1,190,000

      5402 Jefferson Street, Yorba Linda, CA 92886

      • 4 Beds
      • 2 Baths
      • 1,440 Sq.Ft.
    • 925 E Amber Avenue Sold

      $1,170,000

      925 E Amber Avenue, Orange, CA 92865

      • 3 Beds
      • 2 Baths
      • 2,087 Sq.Ft.
    • 509 Vanderbilt Drive Sold

      $1,150,000

      509 Vanderbilt Drive, Placentia, CA 92870

      • 4 Beds
      • 3 Baths
      • 2,421 Sq.Ft.
    • 6631 E Princeton Avenue Sold

      $1,130,000

      6631 E Princeton Avenue, Anaheim Hills, CA 92807

      • 3 Beds
      • 3 Baths
      • 1,945 Sq.Ft.
    • 3275 Limerick Lane Sold

      $1,100,000

      3275 Limerick Lane, Corona, CA 92882

      • 5 Beds
      • 3 Baths
      • 3,307 Sq.Ft.
    • 8039 4th Street Sold

      $1,060,000

      8039 4th Street, Downey, CA 90241

      • 3 Beds
      • 2 Baths
      • 1,666 Sq.Ft.
    • 13181 Dean St Sold

      $1,000,000

      13181 Dean St, Tustin, CA 92780

      • 3 Beds
      • 2 Baths
      • 1,353 Sq.Ft.
    • 1353 Valeview Avenue Sold

      $980,000

      1353 Valeview Avenue, Glendora, CA 91740

      • 4 Beds
      • 2 Baths
      • 1,724 Sq.Ft.
    • 1642 W Woodcrest Avenue Sold

      $980,000

      1642 W Woodcrest Avenue, Fullerton, CA 92833

      • 4 Beds
      • 2 Baths
      • 1,376 Sq.Ft.
    • 2393 Skyline Drive Sold

      $925,000

      2393 Skyline Drive, Brea, CA 92821

      • 3 Beds
      • 2 Baths
      • 1,578 Sq.Ft.
    • 1472 W Roberta Avenue Sold

      $910,000

      1472 W Roberta Avenue, Fullerton, CA 92833

      • 3 Beds
      • 2 Baths
      • 1,190 Sq.Ft.
    • 1420 W Katella Avenue Sold

      $900,000

      1420 W Katella Avenue, Anaheim, CA 92802

      • 3 Beds
      • 2 Baths
      • 1,392 Sq.Ft.
    • 1426 E Cortney Place Sold

      $900,000

      1426 E Cortney Place, Anaheim, CA 92805

      • 3 Beds
      • 2 Baths
      • 1,593 Sq.Ft.
    • 845 S Verde Sold

      $885,000

      845 S Verde, Anaheim, CA 92805

      • 4 Beds
      • 2 Baths
      • 1,664 Sq.Ft.
    • 18239 Villa Clara Street Sold

      $880,000

      18239 Villa Clara Street, Rowland Heights, CA 91748

      • 3 Beds
      • 2 Baths
      • 1,579 Sq.Ft.
    • 13203 Sunnybrook Lane Sold

      $865,000

      13203 Sunnybrook Lane, La Mirada, CA 90638

      • 4 Beds
      • 2 Baths
      • 1,144 Sq.Ft.
    • 2151 W 108th Street Sold

      $865,000

      2151 W 108th Street, Los Angeles, CA 90047

      • 4 Beds
      • 2 Baths
      • 1,660 Sq.Ft.
    • 8039 4th Street Sold

      $865,000

      8039 4th Street, Downey, CA 90241

      • 3 Beds
      • 2 Baths
      • 1,666 Sq.Ft.
    • 3890 English Sold

      $850,000

      3890 English, Hemet, CA 92544

      • 6 Beds
      • 4 Baths
      • 4,950 Sq.Ft.
    • 14263 Humbolt Court Sold

      $840,000

      14263 Humbolt Court, Fontana, CA 92336

      • 6 Beds
      • 3 Baths
      • 2,794 Sq.Ft.
    • 14956 Landerwood Drive Sold

      $837,500

      14956 Landerwood Drive, Eastvale, CA 92880

      • 3 Beds
      • 2 Baths
      • 1,631 Sq.Ft.
    • 331 W Parkwood Avenue Sold

      $835,000

      331 W Parkwood Avenue, La Habra, CA 90631

      • 4 Beds
      • 2 Baths
      • 1,233 Sq.Ft.
    • 2369 Skyline Drive Sold

      $830,000

      2369 Skyline Drive, Brea, CA 92821

      • 2 Beds
      • 2 Baths
      • 1,416 Sq.Ft.
    • 12 Higo Street Sold

      $821,000

      12 Higo Street, Rancho Mission Viejo, CA 92694

      • 3 Beds
      • 3 Baths
      • 1,520 Sq.Ft.
    • 3 Tierra Plano Sold

      $815,000

      3 Tierra Plano, Rancho Santa Margarita, CA 92688

      • 3 Beds
      • 3 Baths
      • 1,361 Sq.Ft.
    • 307 Dolores Circle Sold

      $805,000

      307 Dolores Circle, Placentia, CA 92870

      • 3 Beds
      • 2 Baths
      • 1,310 Sq.Ft.
    • 5666 Whitewater Street Sold

      $799,900

      5666 Whitewater Street, Yorba Linda, CA 92887

      • 2 Beds
      • 2 Baths
      • 1,056 Sq.Ft.
    • 1 Encantado Sold

      $785,000

      1 Encantado, Rancho Santa Margarita, CA 92688

      • 2 Beds
      • 2 Baths
      • 1,230 Sq.Ft.
    • 1501 San Rafael Sold

      $760,000

      1501 San Rafael, Corona, CA 92882

      • 3 Beds
      • 3 Baths
      • 1,780 Sq.Ft.
    • 2027 Cobblefield Way Sold

      $744,000

      2027 Cobblefield Way, Glendora, CA 91740

      • 3 Beds
      • 3 Baths
      • 1,695 Sq.Ft.
    • 18249 Lakeview Drive Sold

      $690,000

      18249 Lakeview Drive, Victorville, CA 92395

      • 3 Beds
      • 3 Baths
      • 2,108 Sq.Ft.
    • 211 Camino Arroyo N Sold

      $675,000

      211 Camino Arroyo N, Palm Desert, CA 92260

      • 3 Beds
      • 3 Baths
      • 2,051 Sq.Ft.
    • 4537 Delancy Drive Sold

      $675,000

      4537 Delancy Drive, Yorba Linda, CA 92886

      • 3 Beds
      • 2 Baths
      • 1,190 Sq.Ft.
    View All

    Follow Us On Instagram